Prodej dvougeneračního rodinného domu 7+2 v Sehradicích
- na dotaz v RK
- na dotaz v RK
Popis
Nabízíme k prodeji samostatně stojící cihlový rodinný dům, postavený v roce 1980, situovaný ve velmi klidné lokalitě s výbornou dostupností do okolních měst. Dům je plně podsklepený, má dvě nadzemní podlaží a částečně obytné podkroví. Celková užitná plocha činí přibližně 200 m², což poskytuje dostatek prostoru i pro vícegenerační bydlení.
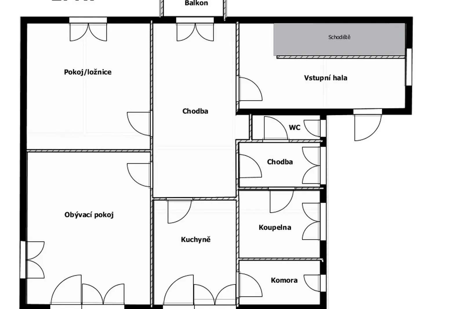
Dispozice domu
1. nadzemní podlaží nabízí vstupní chodbu s přístupem do centrální haly s jídelnou a balkonem. Z haly se vstupuje do kuchyně se špajzem, obývacího pokoje s kuchyňským koutem, prostorného obývacího pokoje s navazující ložnicí. Toaleta je umístěna na chodbě. Ze schodiště je přístup do druhého podlaží i do sklepních prostor.
2. nadzemní podlaží, přístupné po vnitřním schodišti, disponuje kuchyní, koupelnou, prostorným obývacím pokojem, ložnicí, dalším pokojem a velkým mezonetovým pokojem, který lze využít jako ložnici, pracovnu nebo hernu.
Podzemní podlaží poskytuje rozsáhlé technické zázemí – sklepní prostory, dílnu, kotelnu, prádelnu a garáž. Celková výměra pozemku je 800 m2, zastavěná plocha domu je 128 m2.
Technický stav a vybavení
Vytápění domu je zajištěno plynovým kotlem s ústředním topením. Dům je napojen na veřejný vodovod, elektrickou síť (220/380 V) a veřejnou kanalizaci. Okna jsou původní dřevěná, elektroinstalace v obytných místnostech je v původním stavu. Konstrukce domu je zděná, stropy jsou železobetonové, střecha je sedlová s pálenou taškou. Na pozemku se dále nachází přístřešek pro nářadí nebo vozidlo.
Lokalita
Nemovitost se nachází ve vyhledávané a klidné lokalitě s dobrou dostupností lázní Luhačovic nebo Zlína.
Dům je ihned volný a představuje ideální příležitost pro rodinné či vícegenerační bydlení, případně jako investici s možností rekonstrukce dle vlastních představ. Energetická náročnost budovy G. Pro více informací nebo prohlídku mě kontaktujte na tel. 737030995
Adresa
Otevřít v Google Maps-
City: Sehradice
-
Kraj: Zlín
- Karel Adámek













